TOP
WORKS
PROFILE
PROCESS
CONTACT
<<WORKS一覧へ戻る
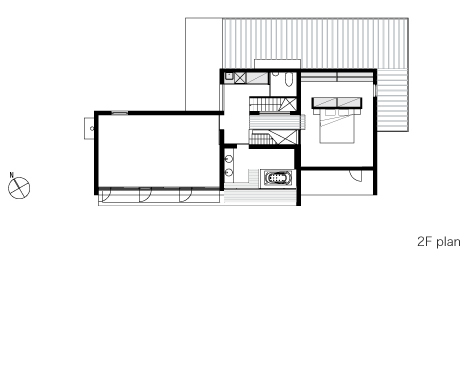
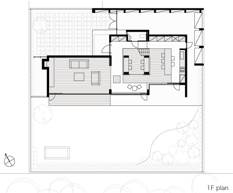
A house「土間のある家」
所在地
世田谷区岡本
用途
個人住宅
設計;意匠
構造
タニグチアトリエ + NOA Ltd
森田建築構造事務所
施工
株式会社前川建設
敷地面積
470.71m
2
建築面積
93.91m
2
延床面積
180.90m
2
構造
鉄筋コンクリート造 地上2階
工期
2002年12月〜2003年6月